ABIL Mansion
Abil Mansion will be the first residential project of its kind in India, offering unique duplex apartments combined with ultra-modern facilities in the pure Versace Home style. The new exclusive building will be located along Hughes Road, in South Mumbai, one of the most prestigious urban district in the city.
https://www.abilgroup.com/projects/residential/abil-mansion/
AMENITIES
LOBBY
Total Area: 250 sq m
ROOFTOP & POOL
Total Area: 320 sq m
TYPICAL 5-BEDROOM DUPLEX UNIT
Total Area: 640 sq m
Design Development Drawings
Typical Unit - Upper Floor
Design Development Drawings
Lobby
Design Development Drawings
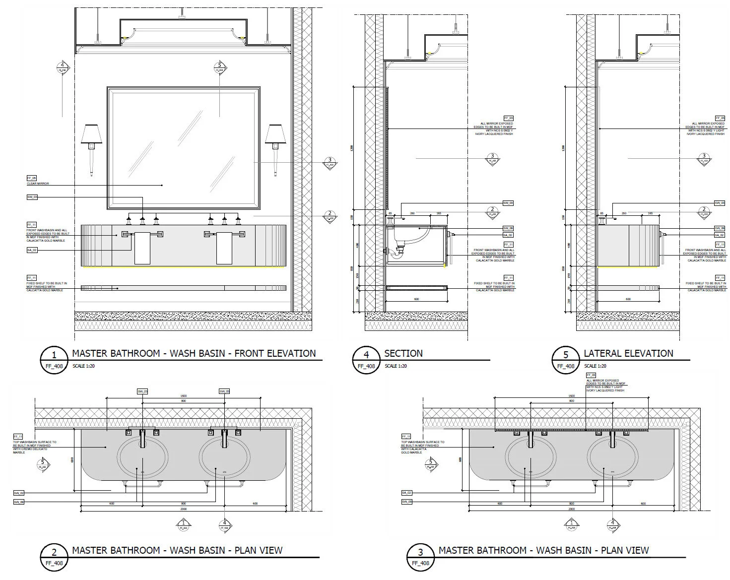
Fixed Furniture
