The SPA
Total Area: 855 sq m
Reception Area
Female Spa Area
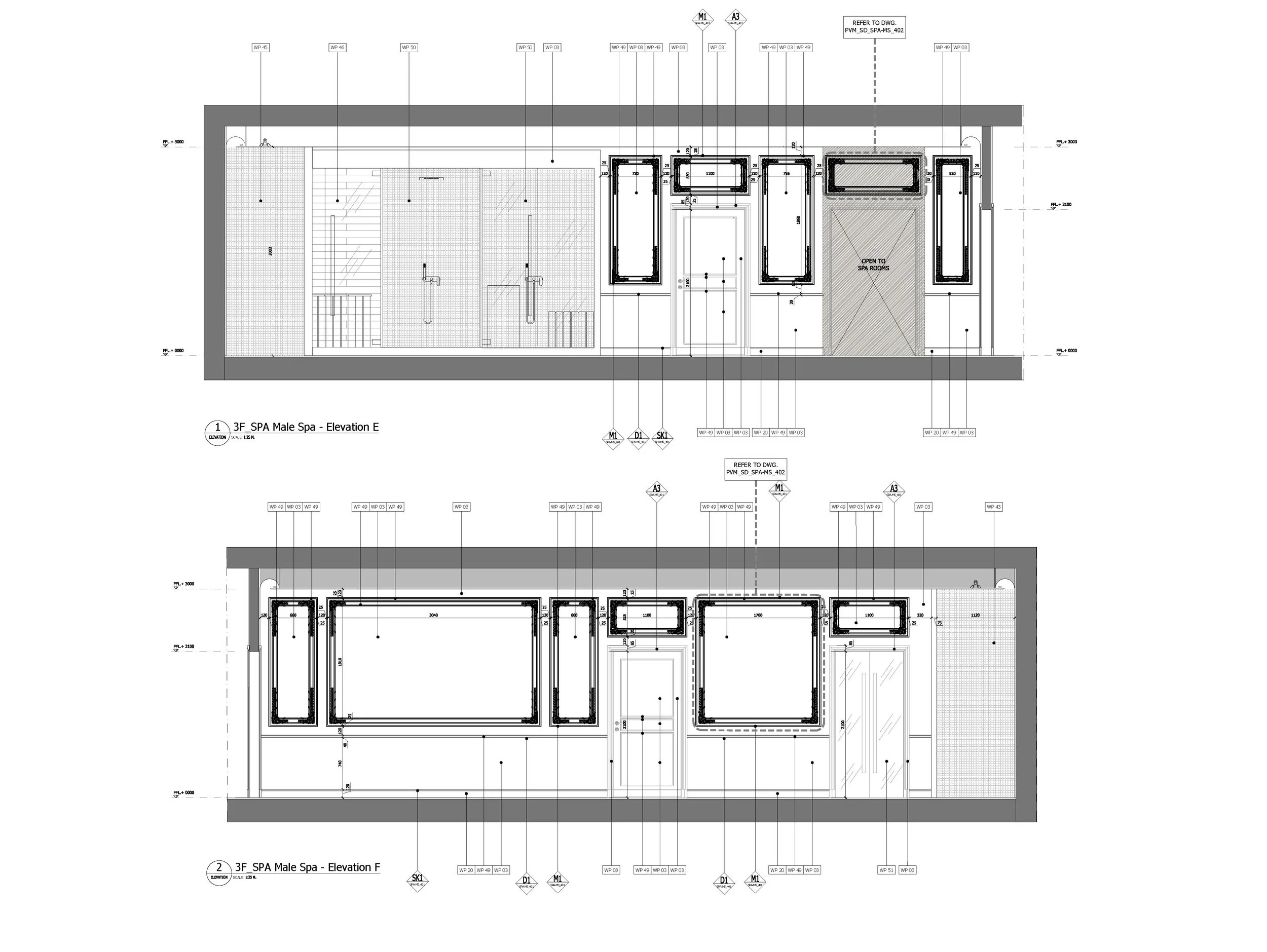
Male Spa Area
Treatment Rooms
Gym
Beauty Salon
Concept design
Preliminary layout & reflected ceiling concept plan
Spa Reception concept
Female Area
Colored plan & colored concept elevations
Male Area
Colored plan & colored concept elevations
Beauty Salon
Colored plan & colored concept elevations
Preliminary renderings
Schematic design
Site supervision
Final styling
